Pronájem bytu 2+kk, 46,5 m2, parkování, Vídeňská, Brno

« zpět

Moderní byt v novostavbě s parkovacím místem

  • Dispozice: 2+kk
  • Umístění: 5. nadzemní podlaží
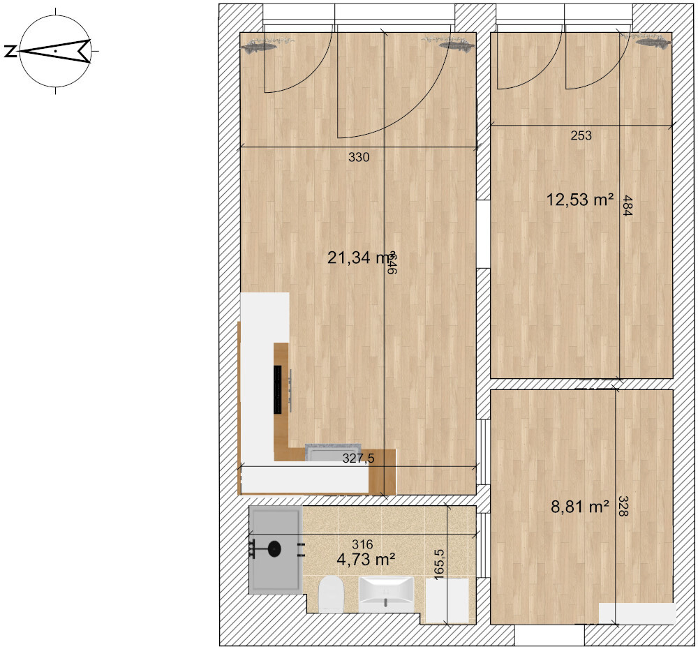
  • Přibližná podlahová plocha: 46,5 m²
  • Lokalita: Brno, Vídeňská ulice – novostavba
  • Parkování: V ceně, stání v uzavřeném dvoře
  • Vybavení bytu:
  • Částečně vybavený
  • Prostorná chodba (8,5 m²) s věšákem a zrcadlem
  • Koupelna (4,5 m²) se sprchovým koutem, toaletou, automatickou pračkou kombinovanou se sušičkou
  • Obývací pokoj s kuchyňským koutem (21 m²): kuchyňská linka, indukční varná deska, digestoř, myčka, lednice s mrazákem
  • 2. pokoj (12,5 m²)
  • Okna obou pokojů orientovaná na východ do ulice Vídeňská
  • Klimatizační jednotky v obou pokojích

Velkou výhodou je parkovací stání v uzavřeném dvoře budovy, které je součástí pronájmu. Bytový dům je umístěn v blízkosti centra s vynikající dostupností jak MHD, tak i dálniční sítě. V dosahu jsou rovněž veškeré služby. Velmi příjemná je bezprostřední blízkost náplavek a cyklostezek zbudovaných při řece Svratce.

Bc. Robert Vojkůvka
+420722115494
robert.vojkuvka@kdomovu.com

Virtuální prohlídka


otevřít v novém okně


Fotogalerie

Ochrana osobních údajů / webové stránky od r3d.cz